C.so ITALIA - ULTIMO PIANO
Italiano Deutsch
25 anni… La sicurezza di vendere, la tranquillità di acquistare

C.so ITALIA - ULTIMO PIANO

565.000 €
145 m2
2 Bagni
Codice
025
Città
Bolzano (Centrale)
Categoria
4 o più locali
Locali
4
Mq Balcone
15
Piano
4
Classe energetica
F
Stato Immobile
Buono
Grado
Signorile
Panorama
Vista Aperta
Orientamento
Est Nord Ovest
Lati Liberi
3
Giardino
No
Arredi
Non Arredato
Tipo Soggiorno
Salone
Tipo Cucina
Abitabile
Riscaldamento
Centralizzato
Tipo Riscaldam.
Caldaia
Tipo Impianto
Radiatori
Fonte Energetica
Metano
Acqua Calda
Autonoma
Raffrescamento
Non Necessario
Infissi
PVC
Serramenti
Buono
Pavim. Giorno
Parquet
Pavim. Notte
Parquet
Pavim. Cucina
Ceramica
Pavim. Bagno
Ceramica
Accessori
Armadio a Muro, Ascensore, Doppi Vetri, Passaggio Pedonale, Porta Blindata
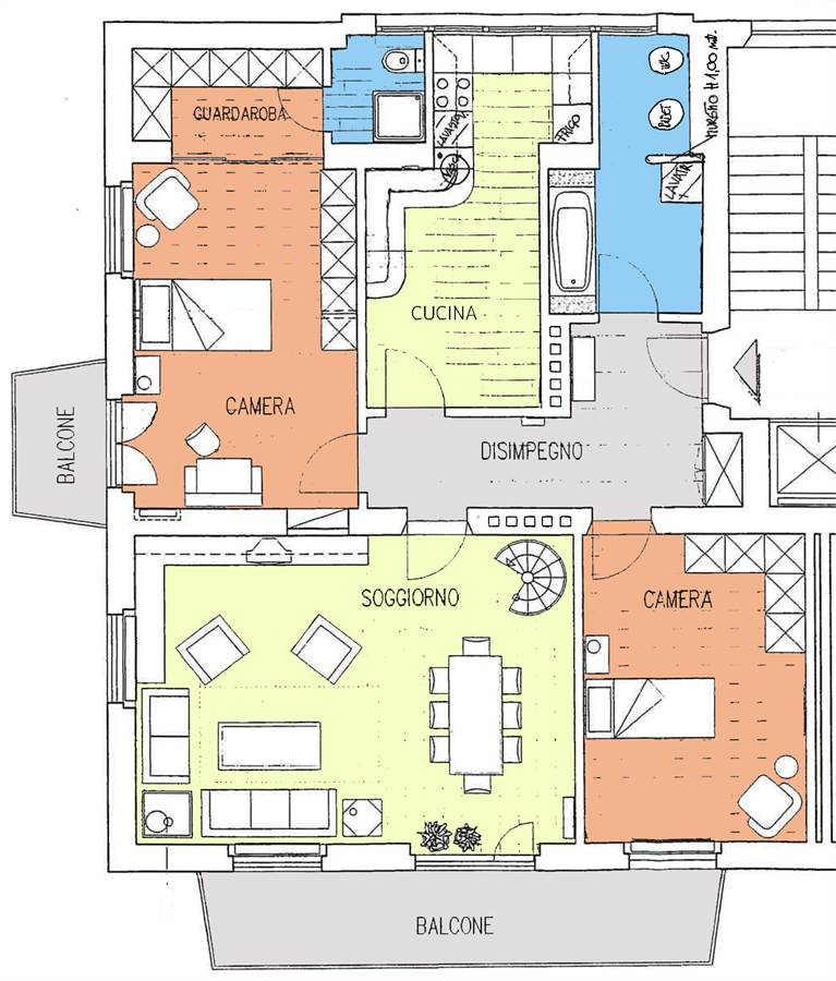
Proponiamo, APPARTAMENTO collegato internamente ad una stanza hobby ideale per uso UFFICIO torvandosi di fronte al Tribunale di Bolzano.
L'immobile ha un'ampia superficie calpestabile di mq. 107,00 più mq. 8,00 di Hobbyraum, è stato completamente ristrutturato nel 1998, è libero su tre lati ed esposto verso Ovest/Nord/Est con vista sul Catinaccio.
L'immobile è composto da ingresso, due camere matrimoniali delle quali una con balcone + cabina armadio + bagno finestrato, grande soggiorno con balcone a Ovest, cucina abitabile, ampio bagno finestrato e l'hobbyraum collegata al soggiorno tramite scala interna.
Interessante è anche la possibilità di trasformarlo tutto o in parte in Ufficio Professionale, vista la vicinanza di numerosi Uffici Provinciali ( Sanità, Giustizia, Registro e Catasto).
La Proprietà comprende infine una cantina al piano seminterrato, e
la possibilità di parcheggiare nel cortile condominiale.

Subito Disponibile!

Per ulteriori informazioni su questo immobile potete contattare direttamente l’agenzia BOLZANO PROGETTO al numero 0471/979737 o 388 051 9637, oppure passare nei nostri uffici di viale Amedeo Duca d'Aosta n.55, dalle ore 8:00 alle 12:30 e dalle 14:00 alle 18:00. Vi aspettiamo per fornirvi ulteriori informazioni ed eventuali alternative all’immobile di vostro interesse.

L’agenzia BOLZANO PROGETTO dal 1992 offre un servizio serio ed affidabile per la compravendita e la locazione di immobili in Provincia di Bolzano, avvalendosi di validi professionisti Pircali Fabrizio, Santini Stefano, Telchini Giancarlo, e coordinati dalla gentilissima collaboratrice Weissenegger Sarah.
Il Team si prende cura dei propri clienti accompagnandoli passo passo, dalla valutazione alla sottoscrizione dell'atto notarile, occupandosi scrupolosamente dell’espletamento di tutte le pratiche burocratiche necessarie.
La pubblicità viene seguita attentamente dal nostro ufficio marketing, proponendo gli immobili su tutti i principali siti internet con annunci completi e semplici, o pubblicandoli su diversi giornali di settore e quotidiani locali.

Il cliente che sceglie l’agenzia BOLZANO PROGETTO è una persona che cerca la serietà e l’affidabilità derivanti da anni di esperienza nel campo immobiliare, e cercando un'ambiente professionale e concreto, dove potersi sentire libero di affidarsi a dei seri professionisti del settore.

Video

Mappa

Corso Italia , Bolzano (BZ)

Richiedi informazioni

Invia

Ti consigliamo anche

990.000 €
Villa In Vendita a Bolzano
3 Bagni 265 m2
290.000 €
4 o più locali In Vendita a Bolzano
1 Bagni 120 m2
720.000 €
4 o più locali In Vendita a Bolzano
2 Bagni 156 m2

Condividi

Cookie preference